戻る

令和8年3月下旬完成予定

小栗2丁目 全1区画

雄郡小学校区にvellk'sの建売建設中♪
北東角地で駐車も楽々♪

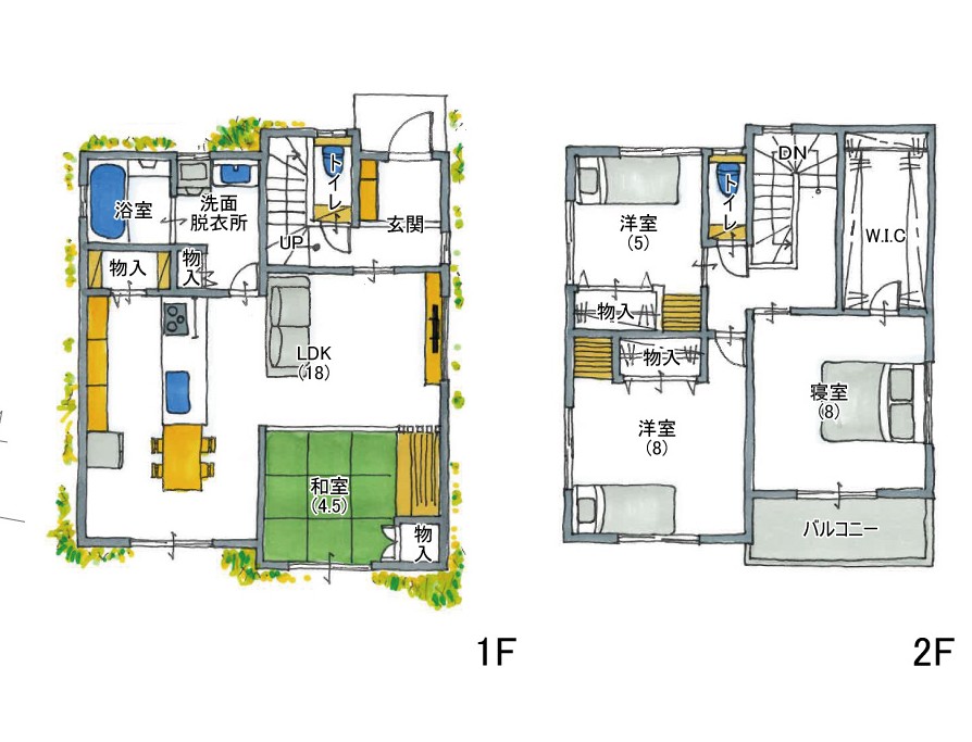
平井建売で人気だったものと同じ、小上がりの和室仕様にしました♪
LDKは小上がりの和室も含め約23帖、
各部屋もゆったり広めで、落ち着いた日常を過ごせます♪
乾太くんを導入!天日干し以上のふわふわをご家庭に♪

全1区画/新規分譲/雄新中学校区

  • 2台駐車可能
  • 乾太くん
  • 住設あんしんサポート
  • 省令準耐火構造
  • 耐震等級3取得
価格
3380万円
構造
木造2階建
建物面積
113.44㎡(34.32坪)
土地面積
132.34㎡(40.03坪)

この物件についてお問い合わせ

この物件についてお問い合わせ、ご質問等ある方は、次のフォームにご入力の上、確認画面にお進みください。
また、お急ぎの場合はメールの対応が遅れてしまう可能性もあるため、お手数ではございますがお電話でのお問い合わせをお願いいたします。

必須お問い合わせ種別
必須お名前
任意フリガナ
必須お電話番号
任意ご連絡希望時間帯
任意ご住所
必須メールアドレス
任意見学希望日
希望日がある場合は翌日以降(営業時間内)でご指定下さい

営業時間/9:30~19:00 | 定休日/水曜

※見学希望日については、状況によってご案内できない場合もございます。店舗のご連絡をもって見学が可能となりますので、予めご了承ください。
任意ご意見・ご要望